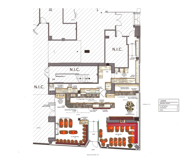
While we’ve shared a lot of photos of the guest rooms and lobby progress, there is one area we haven’t really shown you yet. Our George Howell Coffee space. Slated to open a bit after the hotel, George Howell Coffee will be to the right of the front lobby, opposite of our lobby bar and restaurant.

George Howell‘s career in coffee began in 1974, and we’re honored to be the third George Howell Coffee location in the Greater Boston area – other locations are Newtonville and the Boston Public Market.

Our shop location will be gorgeous and spacious, seating 53 people in total. The floor-to-ceiling windows will let in ample natural light and allow for panoramic views of Washington Street and Downtown Crossing. In addition to the coffee bar and seating, our shop will boast a retail space for speciality displays and demonstrations.

We can’t wait to unveil our George Howell Coffee location to you; we think you’ll love it as much as we do.